Rodinný dům Bea

Ceník
Typový projekt 39 900 Kč
Situace stavby od 11 900 Kč
PENB 5 900 Kč
PBŘS 4 900 Kč

Stavba na klíč od
6 040 000 Kč
Popis

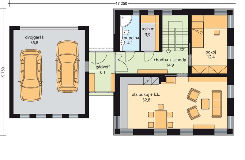
Rodinný dům Bea je moderní dvoupodlažní zděný dům s přistavěnou dvojgaráží, který uspokojí i náročnější uživatele. Na jednoduchém obdélníkovém půdorysu vzniká poměrně štědrá dispozice, kde v přízemí tvoří obývací pokoj spolu s kuchyňským koutem a jídelnou jeden velký centrální prostor domu se vstupem do zahrady, v patře se třemi pokoji, koupelnou a WC. V přízemí je praktická pracovna a dispozice nezapomíná na samostatnou technickou místnost. Tepelnou pohodu v obývacím pokoji můžou zajistit krbová kamna, nebo krb.

Parametry
Typ: Zděný
Dispozice: 5+kk
Podlaží: Dvoupodlažní
Řadový: Ne
Garáž: s garáží
Komín: Ano
Střecha: Pultová
Výška hřebene: 6,6 m
Sklon střechy: 5,0°
Zastavěná plocha: 140,4 m²
Užitková plocha: 172,5 m²
Obestavěný prostor: 806,2 m³
Půdorysy
Přízemí
Půdorys přízemí
Patro
Půdorys patra