Rodinný dům Edmont

Ceník
Typový projekt 34 500 Kč
Situace stavby od 11 900 Kč
PENB 5 900 Kč
PBŘS 4 900 Kč

Stavba na klíč od
4 590 000 Kč
Popis

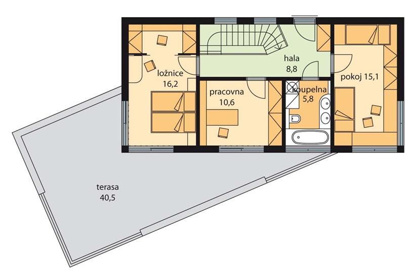
Dvoupodlažní rodinný dům Edmont je netradičního dispozičního uspořádání s krytým parkovacím stáním, určený pro bydlení vícečlenné rodiny. Přes zádveří se vstupuje do haly, která propojuje místnosti v 1.NP-obývací pokoj s jídelním a kuchyňským koutem, ložnicí, s přilehlou koupelnou. Ložnici lze využít jako pracovnu, pokoj pro hosty, s možností dobudovaní samostatného vstupu zvenčí. Z obývacího pokoje i ložnice je přístup na terasu. Střecha obývacího pokoje tvoří terasu v patře. Do 2. patra se vstupuje schodištěm z haly, kde je další ložnice, pokoj, pracovna a koupelna. Kryté parkovací stání je propojeno s vnitřní halou přes komoru.

Parametry
Typ: Zděný
Dispozice: 5+kk
Podlaží: Dvoupodlažní
Řadový: Ne
Garáž: bez garáže
Komín: Ne
Střecha: Plochá
Výška hřebene: 5,9 m
Sklon střechy: 3,0°
Zastavěná plocha: 120,9 m²
Užitková plocha: 132,5 m²
Obestavěný prostor: 613,0 m³
Půdorysy
Přízemí
Půdorys přízemí
Patro
Půdorys patra