Rodinný dům Celestýn

Ceník
Typový projekt 34 500 Kč
Situace stavby od 11 900 Kč
PENB 5 900 Kč
PBŘS 4 900 Kč

Stavba na klíč od
5 250 000 Kč
Popis

Rodinný dům Celestýn je patrový dům moderního vzhledu dispozičně řešený pro bydlení 4 osob. Ze zádveří se dostanete do schodišťové haly, odkud máte přístup do všech místností přízemí a na schodiště do patra. Přízemí je rozděleno na reprezentativní a technickou část domu. Nechybí zde ani dílna pro domácí kutily. Moderní obývací pokoj je opatřen krbem se zadním přikládáním ze speciální místnosti a jsou zde navrženy balkonové dveře vedoucí na terasu. V patře jsou umístěné jednotlivé ložnice a pokoje.

Parametry
Typ: Zděný
Dispozice: 4+kk
Podlaží: Dvoupodlažní
Řadový: Ne
Garáž: bez garáže
Komín: Ano
Střecha: Sedlová
Výška hřebene: 7,7 m
Sklon střechy: 32,0°
Zastavěná plocha: 107,0 m²
Užitková plocha: 157,4 m²
Obestavěný prostor: 700,0 m³
Půdorysy
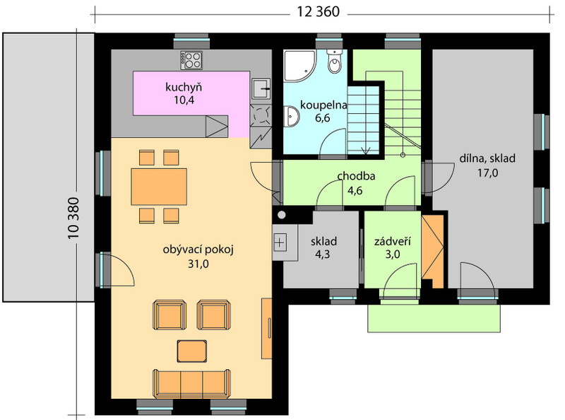
Přízemí
Půdorys přízemí
Patro
Půdorys patra