Rodinný dům Egon

Ceník
Typový projekt 39 900 Kč
Situace stavby od 11 900 Kč
PENB 5 900 Kč
PBŘS 4 900 Kč

Stavba na klíč od
6 990 000 Kč
Popis

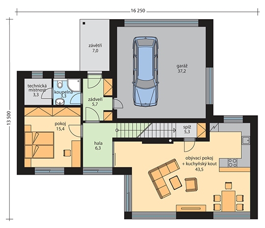
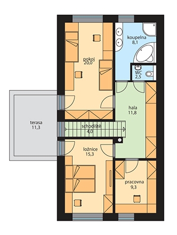
 Rodinný dům EGON je moderní dvoupodlažní dům s garáží vhodný především do městské zástavby, umožňující komfortní bydlení vícečlenné rodině. Dominantou prostoru je tradičně obývací pokoj, tvořící s kuchyní a  jídelním koutem jeden obytný prostor. Vstup na zahradu je prosklenými dvoukřídlými dveřmi v obývacím pokoji, v ložnici i v hale, které jsou součástí sestavy francouzských oken zajišťujících proslunění prostoru. Ke kuchyni přiléhá praktická spíž, nacházející se pod schody a dispozice nezapomíná na samostatnou technickou místnost. Velice žádaný je i pokoj (pro hosty) s přilehlým zázemím (sprcha s wc), který se dá použít jako ložnice, nebo pohodlná pracovna. V 2.NP je prostorná ložnice, pokoj dětí, pracovna a koupelna. Z ložnice a pokoje dětí je přístupná terasa.

Parametry
Typ: Zděný
Dispozice: 5+kk
Podlaží: Dvoupodlažní
Řadový: Ne
Garáž: s garáží
Komín: Ano
Střecha: Pultová
Výška hřebene: 7,2 m
Sklon střechy: 15,0°
Zastavěná plocha: 166,3 m²
Užitková plocha: 209,3 m²
Obestavěný prostor: 933,0 m³
Půdorysy
Přízemí
Půdorys přízemí
Patro
Půdorys patra