Rodinný dům Esma

Ceník
Typový projekt 34 500 Kč
Situace stavby od 11 900 Kč
PENB 5 900 Kč
PBŘS 4 900 Kč

Stavba na klíč od
5 300 000 Kč
Popis

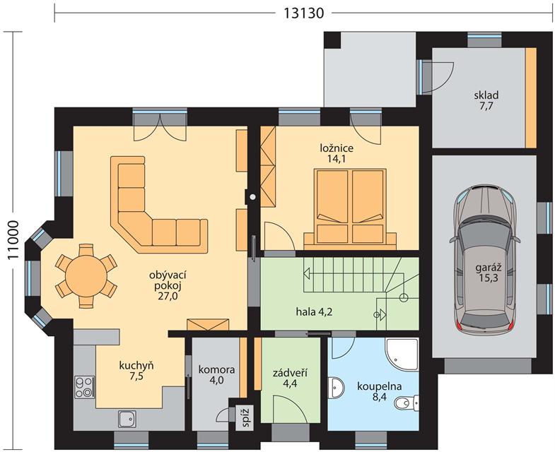
Rodinný dům Esma je klasický podkrovní dům s garáží vhodný do městské zástavby i na venkov. Počet místností 5+1. V přízemí se nachází obývací pokoj s jídelním koutem a kuchyní a ložnice. Příjemným prvkem v nepříznivém počasí je zastřešená terasa, na kterou se vstupuje z ložnice i obývacího pokoje. V podkroví jsou dva dětské pokoje a pracovna /ev.další ložnice/ s vlastní šatnou. Přes nevelké celkové rozměry nabízí dispozice nadstandardně dvě koupelny, dvě šatny, komoru a sklad/ technickou místnost/, který umožňuje tento dům vybavit technologiemi i pro mimořádně úsporný standard. Dům je typově vhodný do rovinného i mírně svažitého terénu.

Parametry
Typ: Zděný
Dispozice: 5+1
Podlaží: Podkrovní
Řadový: Ne
Garáž: s garáží
Komín: Ano
Střecha: Polovalbová
Výška hřebene: 7,4 m
Sklon střechy: 40,0°
Zastavěná plocha: 126,0 m²
Užitková plocha: 1187,0 m²
Obestavěný prostor: 706,5 m³
Půdorysy
Přízemí
Půdorys přízemí
Patro
Půdorys patra