Rodinný dům Evald

Ceník
Typový projekt 39 900 Kč
Situace stavby od 11 900 Kč
PENB 5 900 Kč
PBŘS 4 900 Kč

Stavba na klíč od
6 220 000 Kč
Popis

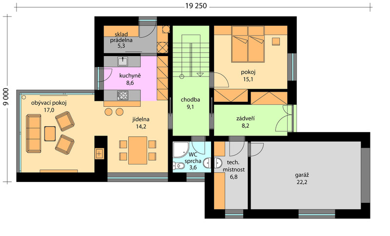
Rodinný dům Evald je moderní dvoupodlažní dům s garáží vhodný především do městské zástavby, umožňující komfortní bydlení i více členné rodině. Dominantou prostoru je tradičně obývací pokoj, tvořící s kuchyní a  jídelním koutem jeden obytný prostor. Vstup na zahradu je prosklenými dvoukřídlými dveřmi v kuchyni i v obývacím pokoji, které jsou součástí sestavy francouzských oken zajišťujících proslunění prostoru. Ke kuchyni přiléhá praktická spíž a dispozice nezapomíná na samostatnou technickou místnost. Velice žádaný je i pokoj (pro hosty) s přilehlým zázemím (sprcha s wc), který se dá použít jako pohodlná pracovna, nebo ložnice. V 2.NP je prostorná ložnice s vlastní koupelničkou a šatnou a pokoj dětí se šatnou a přilehlou koupelnou.

Parametry
Typ: Zděný
Dispozice: 4+1
Podlaží: Dvoupodlažní
Řadový: Ne
Garáž: s garáží
Komín: Ano
Střecha: Plochá
Výška hřebene: 6,2 m
Sklon střechy: 1,0°
Zastavěná plocha: 149,1 m²
Užitková plocha: 166,3 m²
Obestavěný prostor: 830,1 m³
Půdorysy
Přízemí
Půdorys přízemí
Patro
Půdorys patra