Rodinný dům Fabián

Ceník
Typový projekt 34 500 Kč
Situace stavby od 11 900 Kč
PENB 5 900 Kč
PBŘS 4 900 Kč

Stavba na klíč od
4 720 000 Kč
Popis

Rodinný dům Fabián je patrový dům moderního vzhledu s plochou střechou a prostornou obytnou terasou dispozičně řešený pro bydlení jedné rodiny. V přízemí je velký obytný prostor s kuchyňským koutem, pracovna, prostorná šatna, koupelna a technická místnost (dílna). V patře, které je konstrukčně řešeno jako dřevěný sendvič jsou dva pokoje a koupelna. Z obou pokojů je přístup na velkou terasu, která je částečně řešena jako zelená střecha. Při vhodném umístění objektu na pozemek lze využít jako nízkoenergetický či pasivní dům.

Parametry
Typ: Zděný
Dispozice: 4+kk
Podlaží: Dvoupodlažní
Řadový: Ne
Garáž: bez garáže
Komín: Ano
Střecha: Plochá
Výška hřebene: 6,1 m
Sklon střechy: 1,0°
Zastavěná plocha: 120,0 m²
Užitková plocha: 177,9 m²
Obestavěný prostor: 630,0 m³
Půdorysy
Přízemí
Půdorys přízemí
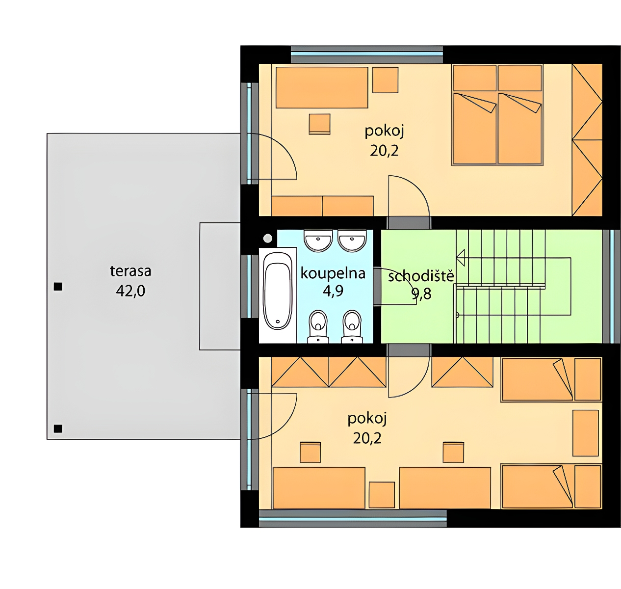
Patro
Půdorys patra