Rodinný dům Frederika

Ceník
Typový projekt 29 900 Kč
Situace stavby od 11 900 Kč
PENB 5 900 Kč
PBŘS 4 900 Kč

Stavba na klíč od
4 350 000 Kč
Popis

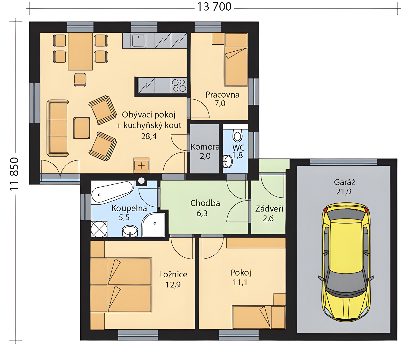
Rodinný dům Frederika je menší bungalov s přistavěnou garáží, jehož dispozice je tvořena dvěma na sebe navazujícími obdélníky, které dům rozdělují na klidovou a obytnou část. Krytým závětřím se vstoupí do chodby, propojující všechny místnosti. Vpravo se vstoupí do obývacího pokoje propojeného s kuchyňským koutem, na něj navazuje pracovna, která může sloužit  i jako pokoj pro hosta. V klidové části domu je ložnice a pokoj dětí. Přes balkonové dveře se z obývacího pokoje vstupuje na terasu. Z chodby je přístupné samostatné WC a koupelna, kde je vana, sprchový kout, umyvadlo a místo pro pračku. Tepelnou pohodu zajistí i krb, nebo krbová kamna v obývacím pokoji. Fasáda je řešena klasickou fasádní omítkou-barevné provedení dle výběru investora.

Projekt Vám zpracujeme i ve variantě bez garáže.

Parametry
Typ: Zděný
Dispozice: 3+kk
Podlaží: Přízemní
Řadový: Ne
Garáž: s garáží
Komín: Ano
Střecha: Valbová
Výška hřebene: 4,7 m
Sklon střechy: 25,0°
Zastavěná plocha: 124,5 m²
Užitková plocha: 99,5 m²
Obestavěný prostor: 521,0 m³
Půdorysy
Přízemí
Půdorys přízemí