Rodinný dům Jarka

Ceník
Typový projekt 28 500 Kč
Situace stavby od 11 900 Kč
PENB 5 900 Kč
PBŘS 4 900 Kč

Stavba na klíč od
3 190 000 Kč
Popis

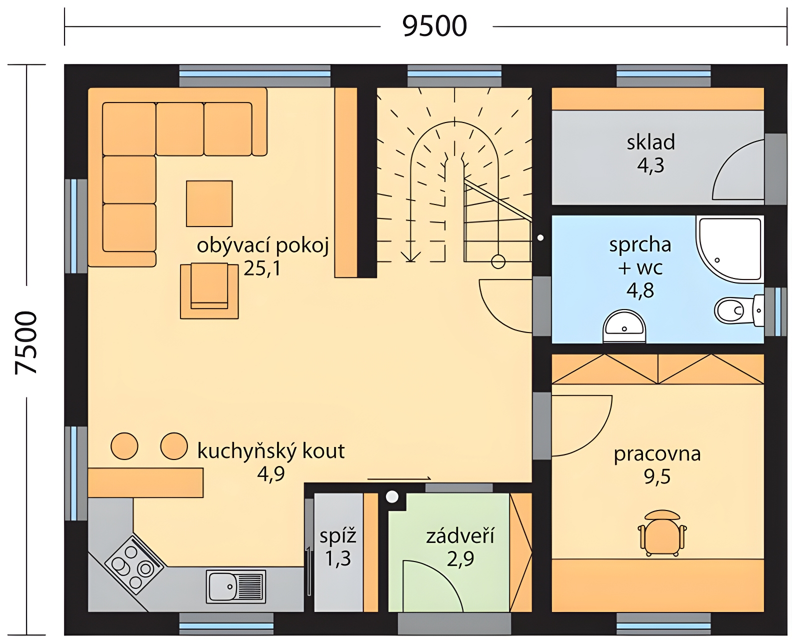
Rodinný dům Jarka je menší přízemní dům s obytným podkrovím, který v šesti obytných místnostech umožní pohodlné bydlení vícečlenné rodině. V přízemí se nachází obývací pokoj s  kuchyňským koutem a pracovna, která může sloužit jako víceúčelový pokoj, např. pro hosty nebo místnost na domácí práce. V podkroví se nachází dva pokoje, ložnice a hobby místnost. Typově vhodný do rovinného i svažitého terénu. Nabízíme i v provedení dřevostvba - viz rodinný dům JARKA - D.

Parametry
Typ: Zděný
Dispozice: 6+kk
Podlaží: Podkrovní
Řadový: Ne
Garáž: bez garáže
Komín: Ano
Střecha: Sedlová
Výška hřebene: 7,4 m
Sklon střechy: 40,0°
Zastavěná plocha: 76,4 m²
Užitková plocha: 115,8 m²
Obestavěný prostor: 515,4 m³
Půdorysy
Přízemí
Půdorys přízemí
Patro
Půdorys patra