Rodinný dům Kouba

Ceník
Typový projekt 34 500 Kč
Situace stavby od 11 900 Kč
PENB 5 900 Kč
PBŘS 4 900 Kč

Stavba na klíč od
5 730 000 Kč
Popis

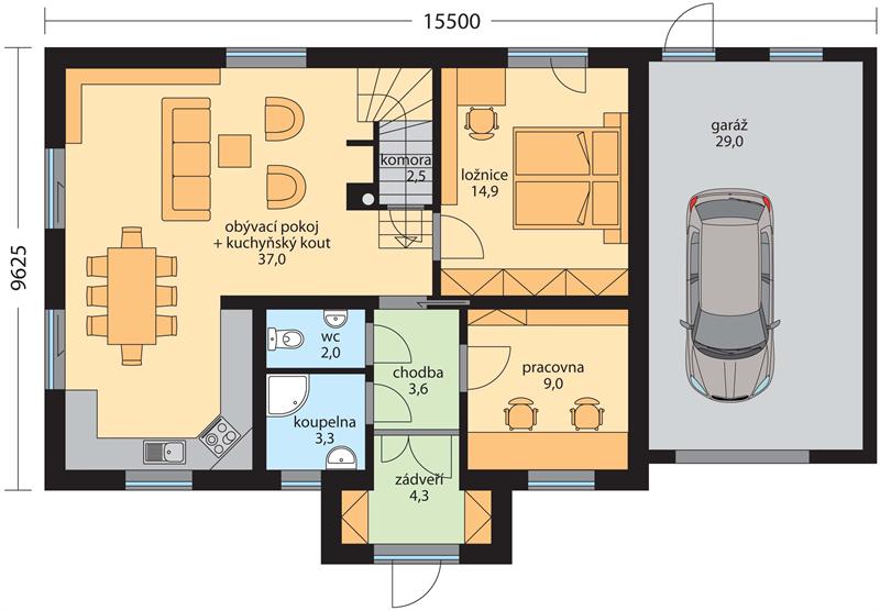
Rodinný dům Kouba je zděná stavba s obytným podkrovím a přistavěnou garáží, určená pro vícečlennou rodinu. Na jednoduchém obdélníkovém půdorysu vzniká poměrně štědrá dispozice se třemi pokoji v přízemí i v podkroví. Obývací pokoj spolu s kuchyňským koutem a jídelnou tvoří jeden velký centrální prostor domu odkud vedou i schody do podkroví. Ke kuchyni přiléhá praktická komora /spíž/ a dispozice nezapomíná kromě ložnice i na pracovnu. Tepelnou pohodu v obývacím pokoji zajistí krb, nebo krbová kamna. V podkroví jsou pokoje dětí a další koupelna. Projekt je nabízen i ve velmi úsporném a mimořádně úsporném standardu provedení.

Parametry
Typ: Zděný
Dispozice: 6+kk
Podlaží: Podkrovní
Řadový: Ne
Garáž: s garáží
Komín: Ano
Střecha: Sedlová
Výška hřebene: 7,2 m
Sklon střechy: 35,0°
Zastavěná plocha: 130,6 m²
Užitková plocha: 175,7 m²
Obestavěný prostor: 764,0 m³
Půdorysy
Přízemí
Půdorys přízemí
Patro
Půdorys patra