Rodinný dům Lesia

Ceník
Typový projekt 34 500 Kč
Situace stavby od 11 900 Kč
PENB 5 900 Kč
PBŘS 4 900 Kč

Stavba na klíč od
4 500 000 Kč
Popis

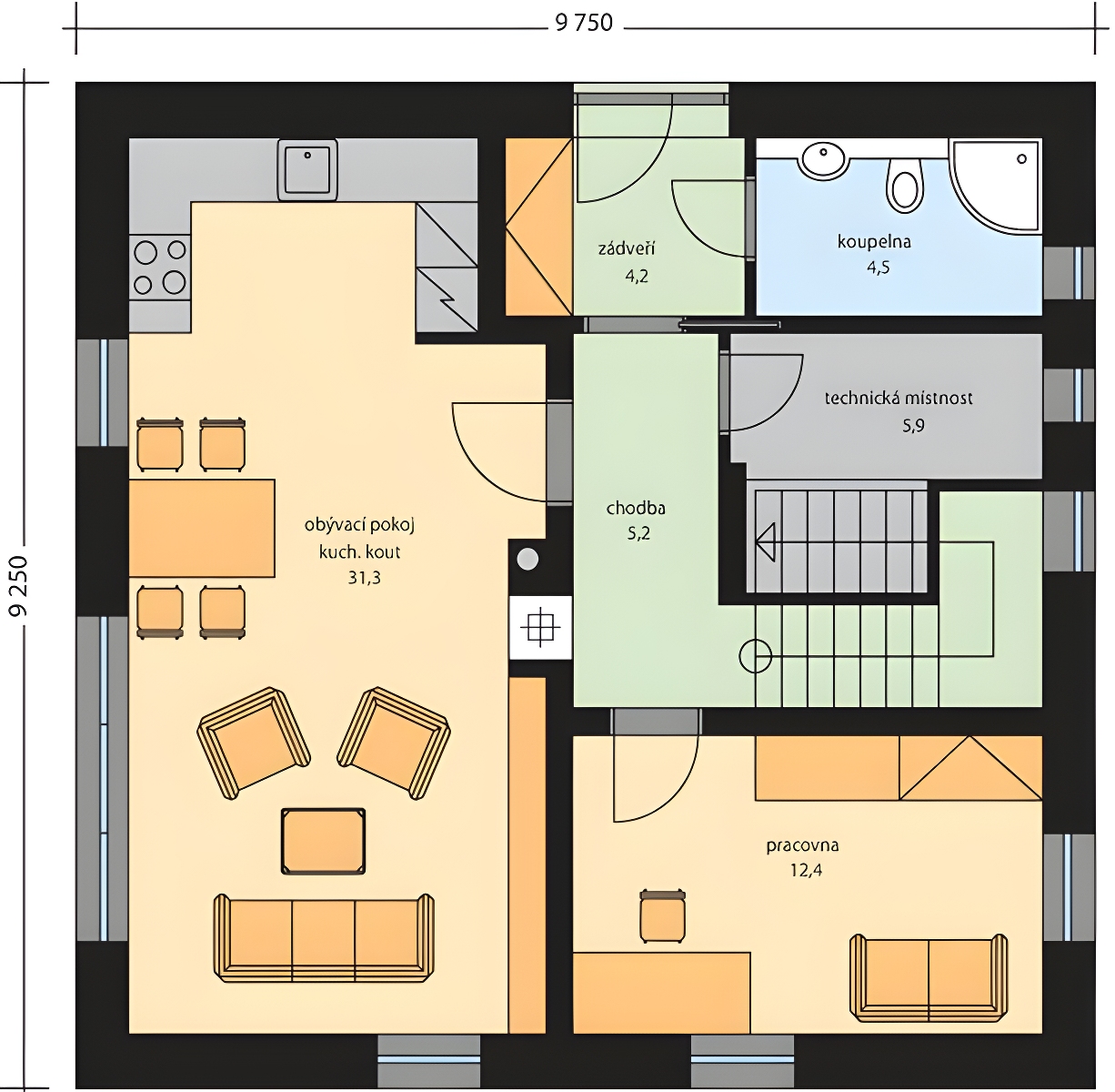
Rodinný dům Lesia je patrový dům moderního vzhledu dispozičně řešený pro bydlení vícečlenné rodiny. Ze zádveří se dostaneme do chodby, odkud je přístup do obytných místností přízemí a na schodiště do patra. Moderní obývací pokoj je opatřen krbem jsou zde navrženy balkonové dveře vedoucí na terasu. Prostor pod schody je využitý jako část technické místnosti, kterou lze upravit na komoru nabo šatnu. Pracovna v přízemí může sloužit jako další ložnice, nebo i pokoj pro hosty. V patře jsou umístěné pokoje, ložnice, koupelna a WC. V koupelně v přízemí je sprchový kout, toaleta a umyvadlo, v patře je sprchový kout, vana, dvě umyvadla, toaleta a místo pro pračku.

K domu lze přistavět garáž, projekt Vám zpracujeme i ve variantě s garáží.

Parametry
Typ: Zděný
Dispozice: 5+kk
Podlaží: Dvoupodlažní
Řadový: Ne
Garáž: možnost garáže
Komín: Ano
Střecha: Sedlová
Výška hřebene: 6,7 m
Sklon střechy: 10,0°
Zastavěná plocha: 90,2 m²
Užitková plocha: 130,4 m²
Obestavěný prostor: 601,0 m³
Půdorysy
Přízemí
Půdorys přízemí
Patro
Půdorys patra