Rodinný dům Maruška

Ceník
Typový projekt 29 900 Kč
Situace stavby od 11 900 Kč
PENB 5 900 Kč
PBŘS 4 900 Kč

Stavba na klíč od
4 370 000 Kč
Popis

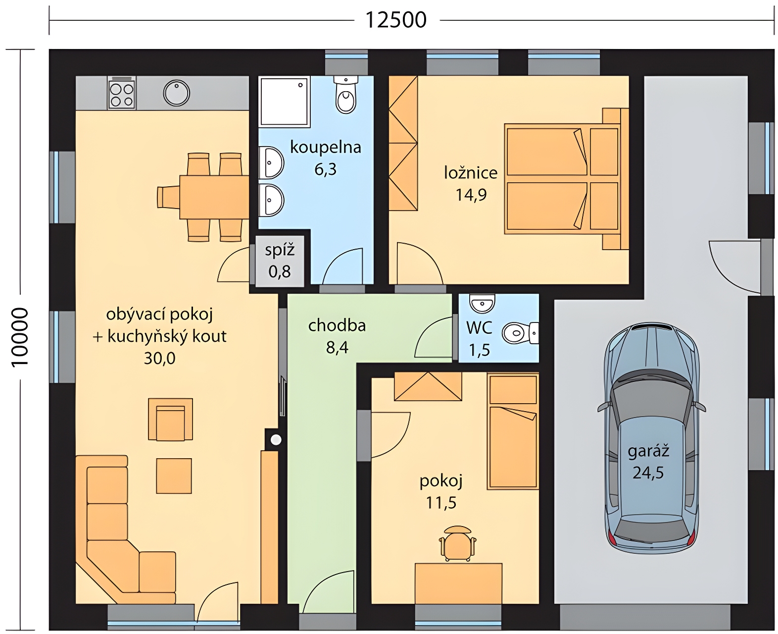
Rodinný dům Maruška je klasický bungalov s garáží a valbovou střechou, určený pro 3 - 4 člennou rodinu. Do domu se vstupuje přímo do chodby, ze které je vlevo vstup do obývacího pokoje propojeného s kuchyňským koutem a vpravo do pokoje a ložnice. Z obývacího pokoje je přístup na venkovní terasu, která je situována stejně se vstupem domu a vjezdem do garáže, proto vstup domu doporučujeme orientovat na V, JV, J.

Parametry
Typ: Zděný
Dispozice: 3+kk
Podlaží: Přízemní
Řadový: Ne
Garáž: s garáží
Komín: Ano
Střecha: Valbová
Výška hřebene: 5,4 m
Sklon střechy: 25,0°
Zastavěná plocha: 125,0 m²
Užitková plocha: 97,7 m²
Obestavěný prostor: 564,6 m³
Půdorysy
Přízemí
Půdorys přízemí