Rodinný dům Matouš

Ceník
Typový projekt 34 500 Kč
Situace stavby od 11 900 Kč
PENB 5 900 Kč
PBŘS 4 900 Kč

Stavba na klíč od
5 730 000 Kč
Popis

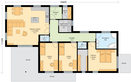
Rodinný dům Matouš je přízemní dům určený pro bydlení jedné rodiny. Dispozici domu tvoří dva na sebe navazující obdélníky. Obytnou část domu tvoří prostorný obývací pokoj s kuchyňským koutem, druhou - klidovou - dva pokoje a ložnice s přilehlou vlastní šatnou. Ze všech pokojů je přístup na venkovní terasu. V obývacím pokoji je komín s krbovými kamny i venkovním krbem. Nabízíme i v provedení dřevostavba viz. rodinný dům MATOUŠ -D.

Parametry
Typ: Zděný
Dispozice: 4+kk
Podlaží: Přízemní
Řadový: Ne
Garáž: bez garáže
Komín: Ne
Střecha: Valbová
Výška hřebene: 4,9 m
Sklon střechy: 25,0°
Zastavěná plocha: 163,9 m²
Užitková plocha: 126,8 m²
Obestavěný prostor: 724,8 m³
Půdorysy
Přízemí
Půdorys přízemí
Patro
Půdorys patra