Rodinný dům Melinda

Ceník
Typový projekt 39 900 Kč
Situace stavby od 11 900 Kč
PENB 5 900 Kč
PBŘS 4 900 Kč

Stavba na klíč od
6 460 000 Kč
Popis

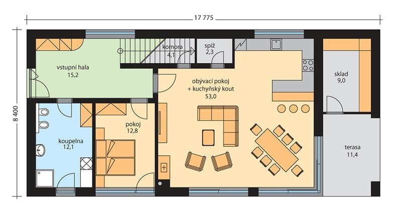
 Rodinný dům Melinda je prostorný dvoupodlažní dům, který je dispozičně navržený pro vícečlennou rodinu. V 1. NP jsou navrženy tyto prostory: vstupní hala se schodištem, ze které se vstupuje do ložnice s přilehlou koupelnou, obývacího pokoje s kuchyňským a jídelním koutem, spíž a komora pod schody, sklad. Z obývacího pokoje je vstup na terasu, kerá je částečně zastřešena. Po schodišti z chodby je přístupné  2.NP, kde jsou navrženy: chodba, ložnice, tři pokoje, dvě koupelny, šatna a WC. Fasáda bude řešena štukovou omítkou s částmi obloženými dřevem.

K domu lze přistavět garáž, projekt Vám zpracujeme i ve variantě s garáží.

Parametry
Typ: Zděný
Dispozice: 6+kk
Podlaží: Dvoupodlažní
Řadový: Ne
Garáž: s garáží
Komín: Ano
Střecha: Pultová
Výška hřebene: 6,6 m
Sklon střechy: 7,0°
Zastavěná plocha: 149,3 m²
Užitková plocha: 239,8 m²
Obestavěný prostor: 1041,6 m³
Půdorysy
Přízemí
Půdorys přízemí
Patro
Půdorys patra