Rodinný dům Pepa

Ceník
Typový projekt 29 900 Kč
Situace stavby od 11 900 Kč
PENB 5 900 Kč
PBŘS 4 900 Kč

Stavba na klíč od
4 060 000 Kč
Popis

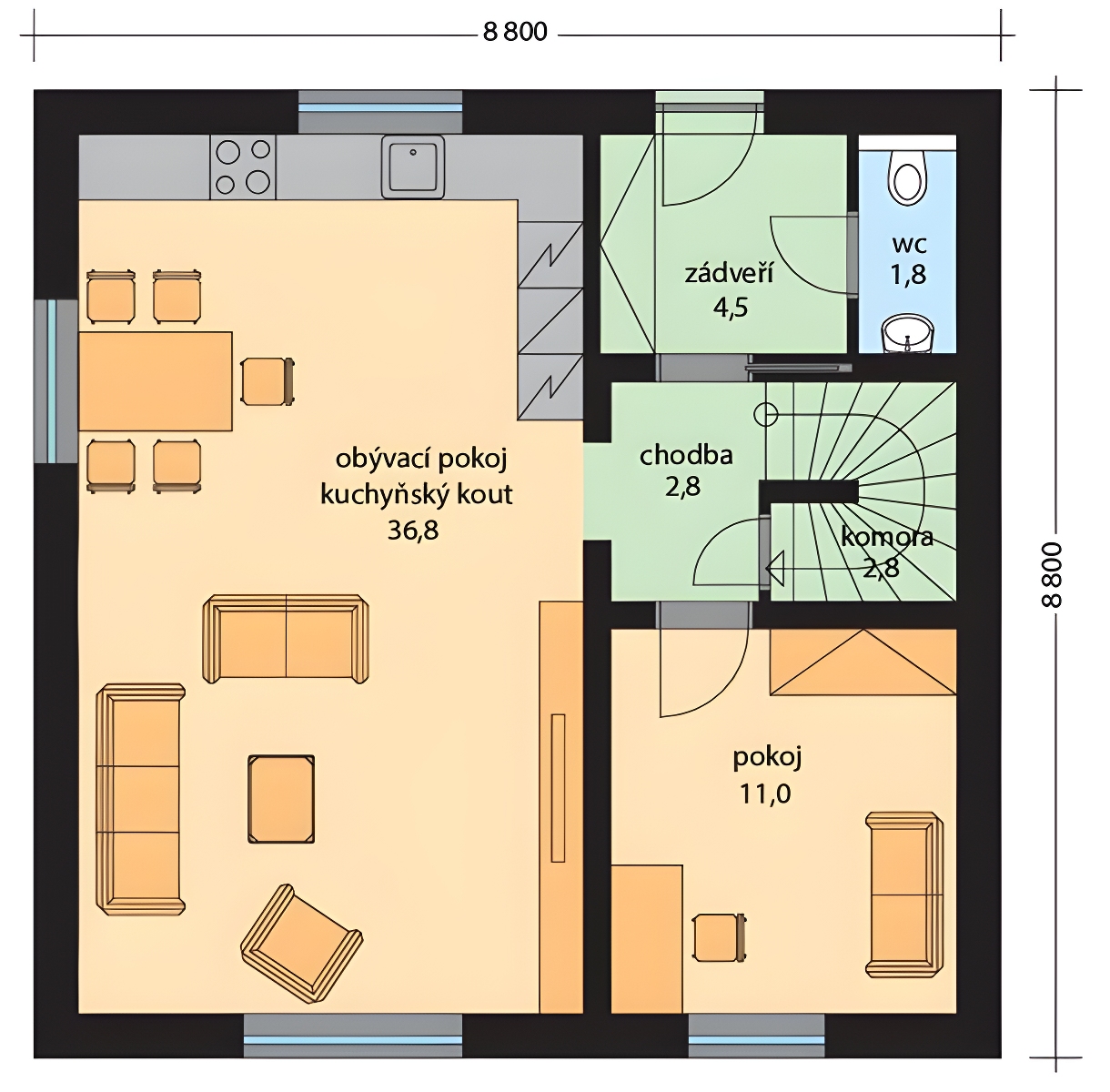
Rodinný dům Pepa je moderního vzhledu a poskytuje pohodlné bydlení pro vícečlennou rodinu. Dispozice a vzhled domu umožňují jej postavit nejen jako samostatně stojící, ale i jako dvojdomek nebo část řadové zástavby. Přízemí tvoří jedna centrální místnost - obývací pokoj s kuchyňským koutem. Pokoj lze využít jako pracovnu, pokoj pro hosty, nebo víceúčelovou místnost. V prostoru pod schody je navržena komora, která poskytuje dostatečný úložný prostor. Klidová část domu je situována do 2.NP a tvoří ji ložnice s přilehlou šatnou, dva pokoje a společné hygienické zázemí. V koupelně je vana, umyvadlo, toaleta a místo pro pračku. Fasáda objektu je tvořena klasickou fasádní omítkou v odstínu dle výběru investora, možno řešit i v kombinaci s cihelným nebo dřevěným obkladem.

 K domu lze přistavět garáž, projekt Vám zpracujeme i ve variantě s garáží.

Parametry
Typ: Zděný
Dispozice: 5+kk
Podlaží: Podkrovní
Řadový: Ne
Garáž: možnost garáže
Komín: Ne
Střecha: Sedlová
Výška hřebene: 7,5 m
Sklon střechy: 25,0°
Zastavěná plocha: 75,7 m²
Užitková plocha: 120,1 m²
Obestavěný prostor: 541,4 m³
Půdorysy
Přízemí
Půdorys přízemí
Patro
Půdorys patra