Rodinný dům Salatea

Ceník
Typový projekt 29 900 Kč
Situace stavby od 11 900 Kč
PENB 5 900 Kč
PBŘS 4 900 Kč

Stavba na klíč od
3 720 000 Kč
Popis

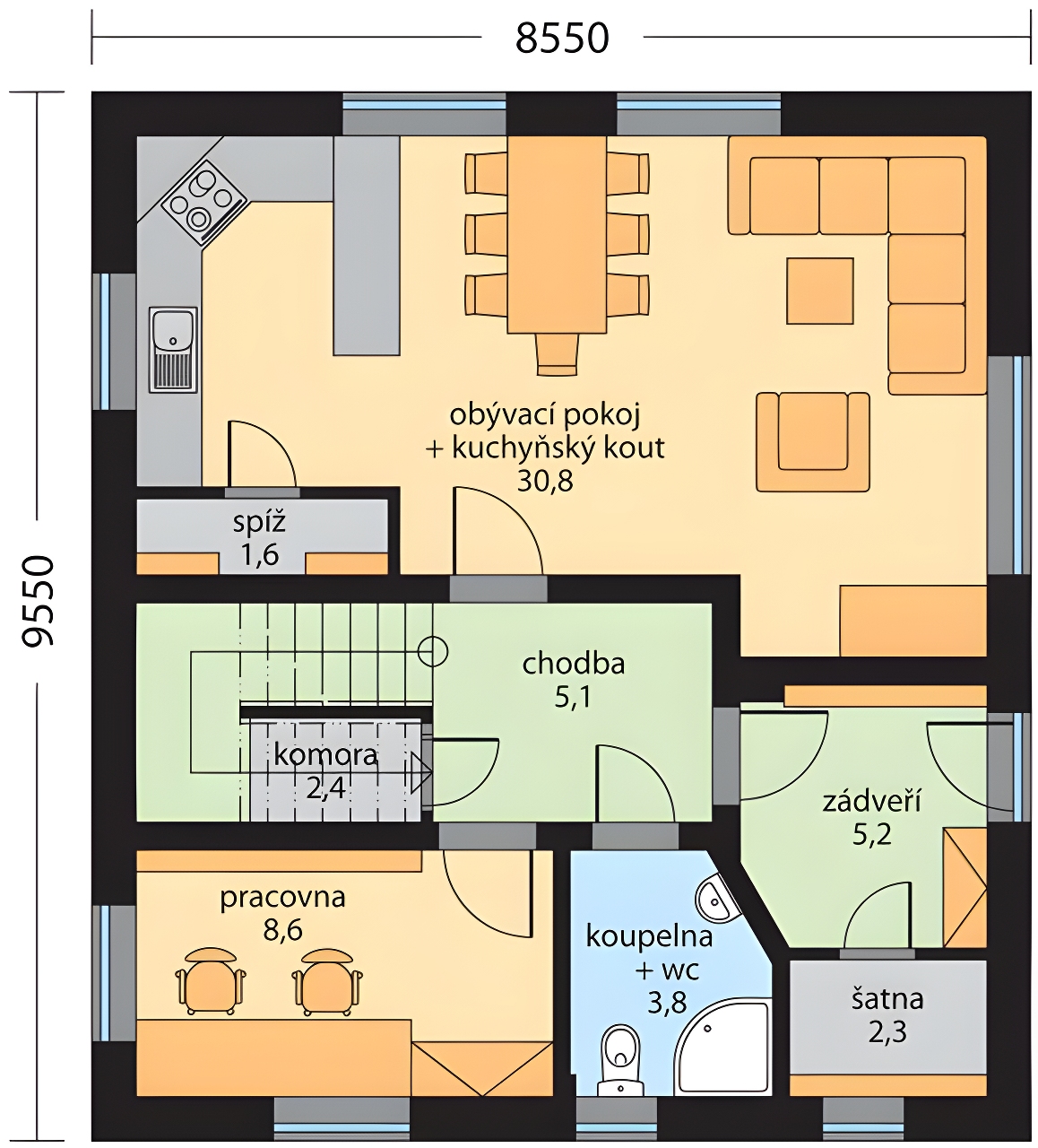
Rodinný dům Salatea je menší domek s plně využitým podkrovím, určený pro bydlení jedné rodiny. Dispozičně je dům rozdělený na denní část s obývacím pokojem a pracovnou v přízemí a noční část v podkroví. Obývací pokoj s jídelním a kuchyńským koutem vytvářejí jeden prostor s výstupem na krytou terasu. Kuchyňský kout je od jídelny a obývacího pokoje opticky oddělený malým barovým pultem. Po schodišti se z obývacího pokoje dostaneme do podkroví, které tvoří tři obytné místnosti, koupelna s WC a malá technická místnost, ve které je umístěný také kotel ústředního vytápění. Stejnou dispozici, ale jiný sklon a typ střechy nabízí projekty domů Šarlota a Walter.

K domu lze přistavět garáž, projekt Vám zpracujeme i ve variantě s garáží.

Parametry
Typ: Zděný
Dispozice: 5+kk
Podlaží: Podkrovní
Řadový: Ne
Garáž: možnost garáže
Komín: Ano
Střecha: Sedlová
Výška hřebene: 6,9 m
Sklon střechy: 35,0°
Zastavěná plocha: 81,7 m²
Užitková plocha: 124,4 m²
Obestavěný prostor: 497,0 m³
Půdorysy
Přízemí
Půdorys přízemí
Patro
Půdorys patra