Rodinný dům Šarlota

Ceník
Typový projekt 29 900 Kč
Situace stavby od 11 900 Kč
PENB 5 900 Kč
PBŘS 4 900 Kč

Stavba na klíč od
4 070 000 Kč
Popis

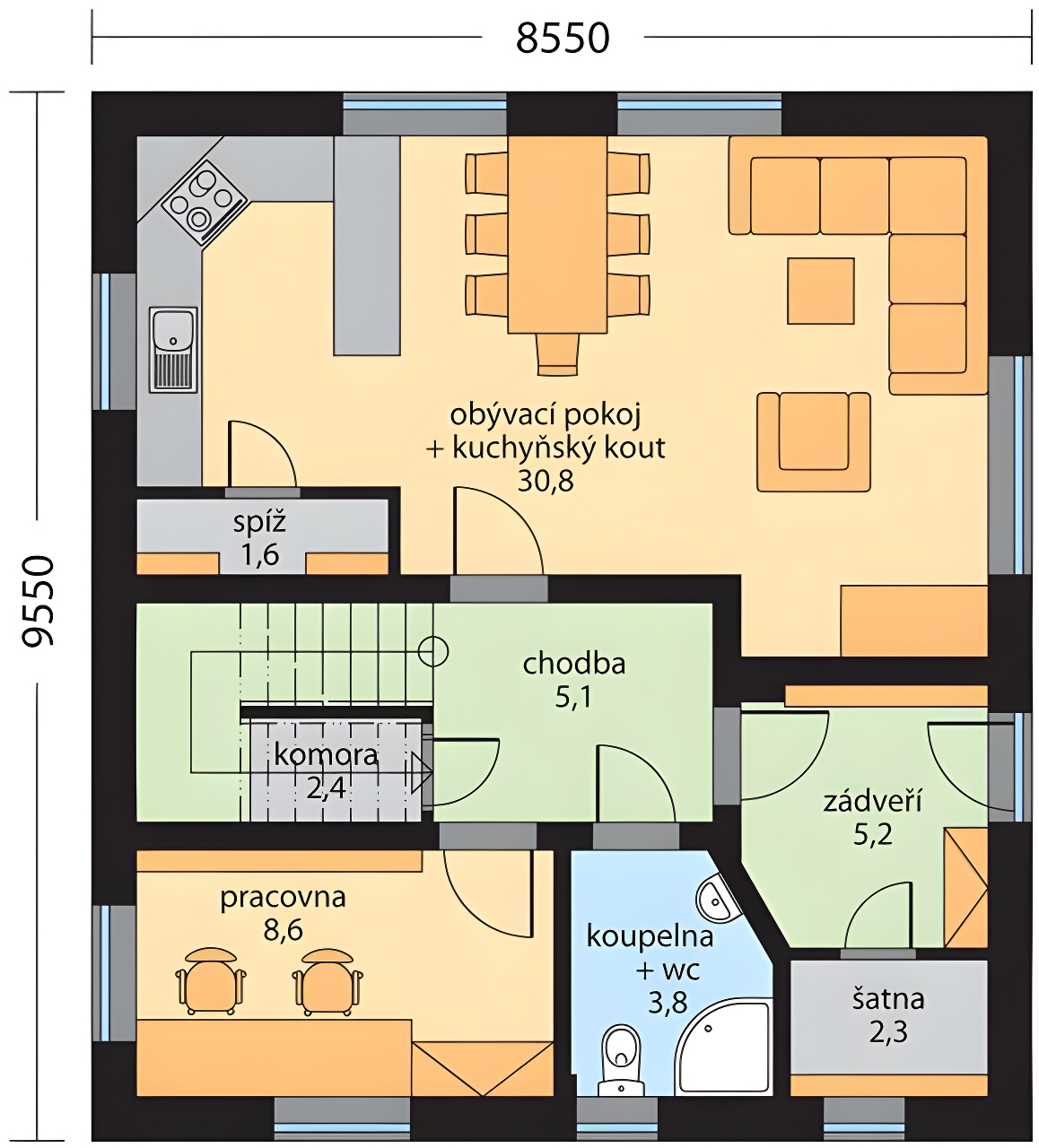
Rodinný dům Šarlota je menší dvoupodlažní rodinný dům, určený pro bydlení jedné rodiny.  V přízemí se nachází obývací pokoj propojený s kuchyňským koutem a pracovna. V 2.NP jsou dva dětské pokoje a ložnice. Technické zázemí a dostatek úložných prostor zajišťují dvě koupelny, technická místnost, komora pod schody, šatna, spíž. Dům nabízíme i v jiném typu a sklonu střechy-viz.RD Salatea, nebo Walter.

K domu lze přistavět garáž, projekt Vám zpracujeme i ve variantě s garáží.

Parametry
Typ: Zděný
Dispozice: 5+kk
Podlaží: Dvoupodlažní
Řadový: Ne
Garáž: možnost garáže
Komín: Ano
Střecha: Sedlová
Výška hřebene: 7,0 m
Sklon střechy: 25,0°
Zastavěná plocha: 81,7 m²
Užitková plocha: 124,4 m²
Obestavěný prostor: 542,7 m³
Půdorysy
Přízemí
Půdorys přízemí
Patro
Půdorys patra