Rodinný dům Saskie s garáží

Ceník
Typový projekt 34 500 Kč
Situace stavby od 11 900 Kč
PENB 5 900 Kč
PBŘS 4 900 Kč

Stavba na klíč od
5 070 000 Kč
Popis

Rodinný dům Saskie je dvoupodlažní dům s garáží, určený především do městské zástavby, který lze zrealizovat i jako dvojdomek, nebo řadový dům. Jednoduchá dispozice umožní pohodlné bydlení jedné rodině, kde v 1.NP se nachází prostorný obývací pokoj s kuchyňským koutem a schodištěm vedoucím do patra. Francouzská okna v obývacím pokoji umožňují nejen propojení interiéru s exteriérem, ale hlavně dostatečné osvětlení. V 2.NP je ložnice, pokoj dětí, který lze rozdělit na dva menší pokoje. Z pokoje dětí se vstupuje na prostornou terasu situovanou nad garáží domu. Projekt nabízíme i ve variantě bez garáže - SASKIE.

Parametry
Typ: Zděný
Dispozice: 3+kk
Podlaží: Dvoupodlažní
Řadový: Ne
Garáž: s garáží
Komín: Ne
Střecha: Plochá
Výška hřebene: 6,2 m
Sklon střechy: 1,0°
Zastavěná plocha: 114,8 m²
Užitková plocha: 166,1 m²
Obestavěný prostor: 677,2 m³
Půdorysy
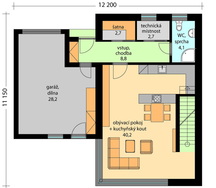
Přízemí
Půdorys přízemí
Patro
Půdorys patra