Rodinný dům Verena

Ceník
Typový projekt 39 900 Kč
Situace stavby od 11 900 Kč
PENB 5 900 Kč
PBŘS 4 900 Kč

Stavba na klíč od
6 350 000 Kč
Popis

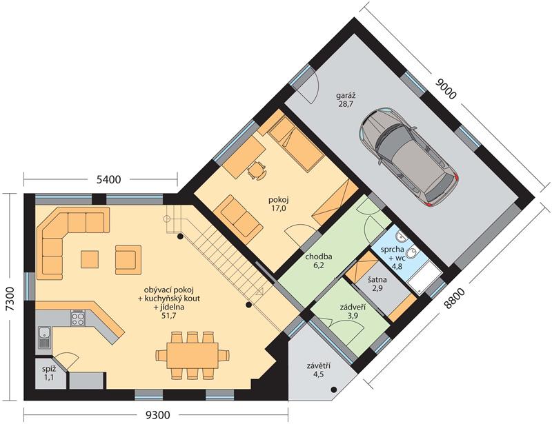
Rodinný dům Verena moderní dvoupodlažní dům s garáží, atypického dispozičního řešení, který nabízí ve čtyřech pokojích pohodlné bydlení jedné rodině. Dominantou prostoru je tradičně obývací pokoj, který tvoří s kuchyňským koutem a jídelnou jeden velký centrální prostor domu odkud vedou i schody do patra. Ke kuchyni přiléhá praktická spíž a dispozice nezapomíná na šatnu a pokoj, který může sloužit jako pracovna, ložnice nebo pokoj pro hosty. V druhém nadzemním podlaží je pokoj, ložnice, koupelna, WC, šatna a pracovní kout.

Parametry
Typ: Zděný
Dispozice: 4+kk
Podlaží: Dvoupodlažní
Řadový: Ne
Garáž: s garáží
Komín: Ano
Střecha: Pultová
Výška hřebene: 6,3 m
Sklon střechy: 5,0°
Zastavěná plocha: 144,4 m²
Užitková plocha: 185,9 m²
Obestavěný prostor: 847,7 m³
Půdorysy
Přízemí
Půdorys přízemí
Patro
Půdorys patra