Rodinný dům Vlaďka

Ceník
Typový projekt 39 900 Kč
Situace stavby od 11 900 Kč
PENB 5 900 Kč
PBŘS 4 900 Kč

Stavba na klíč od
7 870 000 Kč
Popis

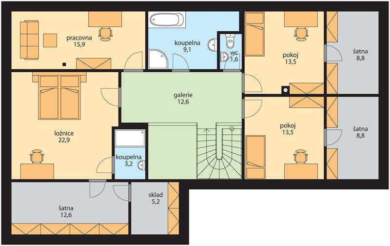
Rodinný dům Vlaďka je rozšířená varianta domu Vláďa. Zděný dům 5+kk s obytným podkrovím a dvougaráží, zastřešený valbovou střechou, je určený pro luxusnější bydlení jedné rodiny. V přízemí se nachází obývací pokoj s kuchyňským koutem a jídelnou, který tvoří jeden velký celek, propojený fancouzskými okny se zahradou. Za dvougaráží je technická místnost a prádelna, kterou lze předělat na pokoj pro hosty. V podkroví se nachází tři prostorné ložnice /každá s vlastní šatnou/, pracovna, koupelna a WC.

Parametry
Typ: Zděný
Dispozice: 5+kk
Podlaží: Podkrovní
Řadový: Ne
Garáž: s garáží
Komín: Ano
Střecha: Valbová
Výška hřebene: 7,0 m
Sklon střechy: 35,0°
Zastavěná plocha: 171,0 m²
Užitková plocha: 256,2 m²
Obestavěný prostor: 1050,0 m³
Půdorysy
Přízemí
Půdorys přízemí
Patro
Půdorys patra