Rodinný dům Walter

Ceník
Typový projekt 28 500 Kč
Situace stavby od 11 900 Kč
PENB 5 900 Kč
PBŘS 4 900 Kč

Stavba na klíč od
3 480 000 Kč
Popis

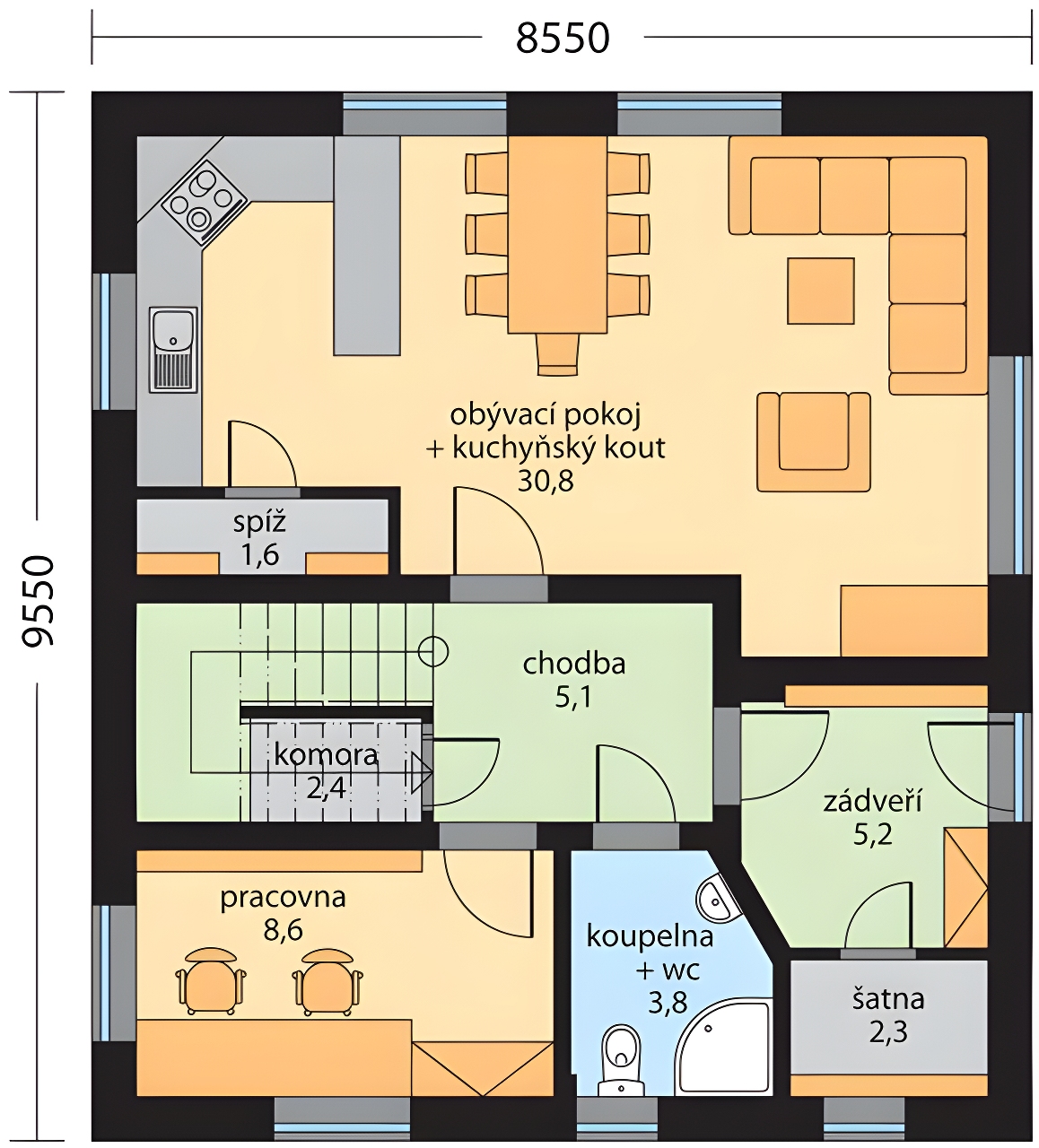
Rodinný dům Walter je menší dvoupodlažní rodinný dům, určený pro bydlení jedné rodiny o pěti pokojích s kuchyňským koutem. Do domu se vstupuje zádveřím se šatnou, dále se v 1.NP se nachází obývací pokoj propojený s kuchyňským koutem a pracovna, která může sloužit jako pokoj pro hosta nebo babičku. V 2.NP jsou dva dětské pokoje a ložnice. Fasáda domu je řešena kombinací fasaádní omítky a obkladových cihliček, možno navrhnout jen śtukovou omítku. Totožnou dispozici s jiným řešením střechy mají RD Salatea a RD Šarlota.

K domu lze přistavět garáž, projekt Vám zpracujeme i ve variantě s garáží.

Parametry
Typ: Zděný
Dispozice: 5+kk
Podlaží: Dvoupodlažní
Řadový: Ne
Garáž: možnost garáže
Komín: Ano
Střecha: Valbová
Výška hřebene: 7,6 m
Sklon střechy: 25,0°
Zastavěná plocha: 81,7 m²
Užitková plocha: 124,4 m²
Obestavěný prostor: 561,8 m³
Půdorysy
Přízemí
Půdorys přízemí
Patro
Půdorys patra