Rodinný dům Zoja

Ceník
Typový projekt 34 500 Kč
Situace stavby od 11 900 Kč
PENB 5 900 Kč
PBŘS 4 900 Kč

Stavba na klíč od
5 500 000 Kč
Popis

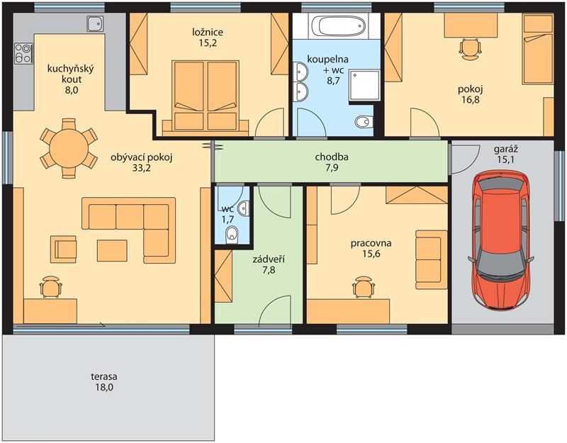
Rodinný dům Zoja je zděný bungalov s garáží moderního vzhledu určený pro bydlení jedné rodiny. Do domu se vstupuje přes zádveří, na které navazuje chodba - komunikační prostor domu, propojující všechny místnosti rodinného domu-obývací pokoj s kuchyňským koutem, ložnici, pokoj a pracovnu i garáž. Dvoukřídlé balkonové dveře a sestava velkých prosklenných oken v obývacím pokoji umožňují dostatečné proslunění a přímé propojení interiéru s exteriérem, tedy obývacího pokoje se zahradou. Nabízíme i ve variantě dřevostavba (viz. dům ZOJA - D).

Parametry
Typ: Zděný
Dispozice: 4+kk
Podlaží: Přízemní
Řadový: Ne
Garáž: s garáží
Komín: Ne
Střecha: Plochá
Výška hřebene: 3,7 m
Sklon střechy: 0,0°
Zastavěná plocha: 157,1 m²
Užitková plocha: 130,0 m²
Obestavěný prostor: 620,3 m³
Půdorysy
Přízemí
Půdorys přízemí
Patro
Půdorys patra